Zbrojenie górne płyty żelbetowej odgrywa kluczową rolę w zapewnieniu jej nośności oraz odporności na różnorodne naprężenia. Jest to szczególnie istotne w obszarach podporowych oraz narożach, gdzie występują siły zginające i skręcające. Właściwe zaprojektowanie zbrojenia górnego jest niezbędne, aby uniknąć problemów takich jak pęknięcia czy unoszenie się krawędzi płyt. W niniejszym artykule przyjrzymy się zasadom projektowania zbrojenia górnego, jego praktycznym zastosowaniom oraz najczęstszym błędom, które można popełnić podczas jego rozmieszczania.
Właściwe zrozumienie roli zbrojenia górnego pozwala inżynierom i projektantom na tworzenie bardziej stabilnych i trwałych konstrukcji. Oprócz podstawowych zasad i wymagań dotyczących zbrojenia, omówimy także obliczenia oraz wytyczne, które są kluczowe dla prawidłowego wykonania projektów żelbetowych.Kluczowe informacje:
- Zbrojenie górne jest niezbędne w obszarach podporowych oraz narożach płyt żelbetowych.
- W przypadku płyt swobodnie opartych, zbrojenie górne zapobiega unoszeniu się krawędzi i pęknięciom.
- Minimum 50% zbrojenia przęsłowego powinno być zakotwione w strefach podporowych.
- Zbrojenie górne może być stosowane także dla zapewnienia sztywności i kontroli ugięć.
- Specjalne zasady dotyczą zakotwień i długości zakładów prętów w zbrojeniu górnym.
- Unikanie typowych błędów w rozmieszczaniu zbrojenia górnego jest kluczowe dla trwałości konstrukcji.
Zrozumienie roli zbrojenia górnego w płytach żelbetowych
Zbrojenie górne płyty żelbetowej jest kluczowym elementem, który zapewnia jej nośność oraz odporność na różnorodne naprężenia. Jego obecność jest szczególnie istotna w miejscach, gdzie występują siły zginające i skręcające, takich jak naroża i obszary podporowe. Właściwe zrozumienie roli zbrojenia górnego pozwala na lepsze projektowanie płyt, co przekłada się na ich dłuższą żywotność i mniejsze ryzyko uszkodzeń. Bez odpowiedniego zbrojenia, płyty mogą ulegać deformacjom, co prowadzi do powstawania pęknięć i innych problemów strukturalnych.
W przypadku płyt podparty na obwodzie, zbrojenie górne jest niezbędne, aby przeciwdziałać skręcaniu płyty. Zazwyczaj wymaga się, aby zasięg zbrojenia górnego wynosił około 500 mm, co odpowiada długości boku płyty podzielonej przez 10. W płytach swobodnie opartych, zbrojenie górne również odgrywa istotną rolę w zapobieganiu unoszeniu się krawędzi. Dlatego tak ważne jest, aby projektanci i inżynierowie byli świadomi znaczenia zbrojenia górnego i jego wpływu na stabilność oraz nośność konstrukcji.
Jak zbrojenie górne wpływa na nośność i stabilność płyty?
Zbrojenie górne ma bezpośredni wpływ na nośność i stabilność płyt żelbetowych. Dzięki odpowiedniemu rozmieszczeniu prętów zbrojeniowych, płyty mogą skutecznie przenosić siły ściskające oraz zginające. W obszarach podporowych, gdzie moment zginający zmienia znak, zbrojenie górne staje się kluczowe dla zachowania integralności strukturalnej. Właściwie zaprojektowane zbrojenie górne nie tylko zwiększa nośność płyty, ale także poprawia jej odporność na różnorodne obciążenia, co jest niezbędne w przypadku złożonych warunków eksploatacyjnych.
- Zbrojenie górne zwiększa nośność płyt, co jest kluczowe w obszarach podporowych.
- Odpowiednie rozmieszczenie prętów zbrojeniowych przeciwdziała deformacjom i pęknięciom.
- W narożach płyt, zbrojenie górne jest szczególnie ważne dla stabilności konstrukcji.
Kluczowe zasady projektowania zbrojenia górnego w płytach
Projektowanie zbrojenia górnego płyty żelbetowej opiera się na kilku fundamentalnych zasadach, które mają na celu zapewnienie odpowiedniej wytrzymałości i stabilności konstrukcji. Pierwszym z kluczowych aspektów jest dobór odpowiednich materiałów. Pręty zbrojeniowe powinny być wykonane z wysokiej jakości stali, która charakteryzuje się dobrą odpornością na korozję oraz wysoką wytrzymałością na rozciąganie. Wybór materiału ma ogromne znaczenie, ponieważ wpływa na długowieczność i bezpieczeństwo całej konstrukcji.
Kolejnym istotnym elementem jest strategia rozmieszczania prętów zbrojeniowych. W płytach podparty na obwodzie, zbrojenie górne powinno być umieszczone w miejscach, gdzie występują największe naprężenia, takie jak naroża oraz strefy podporowe. Należy również pamiętać o długości zakładów prętów, które powinny być zgodne z obowiązującymi normami budowlanymi. W przypadku płyt swobodnie opartych, zbrojenie górne powinno być zaprojektowane tak, aby efektywnie przenosić siły działające na konstrukcję, co jest kluczowe dla jej stabilności i bezpieczeństwa.
Praktyczne zastosowania zbrojenia górnego w różnych typach płyt
W praktyce, zastosowanie zbrojenia górnego w płytach żelbetowych różni się w zależności od typu konstrukcji i specyficznych wymagań projektowych. Na przykład, w płytach podparty na obwodzie, zbrojenie górne jest niezbędne do przeciwdziałania skręcaniu i zginaniu, co jest szczególnie ważne w narożach. W takich przypadkach, zbrojenie górne powinno być dostosowane do wymogów obliczeniowych oraz warunków eksploatacyjnych, aby zapewnić odpowiednią nośność i stabilność konstrukcji.
W płytach swobodnie opartych, zbrojenie górne ma za zadanie zapobiegać unoszeniu się krawędzi oraz powstawaniu pęknięć, które mogą wystąpić pod wpływem obciążeń. Dobrze zaprojektowane zbrojenie górne w takich płytach nie tylko zwiększa ich wytrzymałość, ale również poprawia odporność na deformacje. Przykładem mogą być płyty stosowane w budynkach mieszkalnych, gdzie zbrojenie górne jest kluczowe dla zapewnienia komfortu i bezpieczeństwa mieszkańców.
Zbrojenie górne w płytach podparty na obwodzie
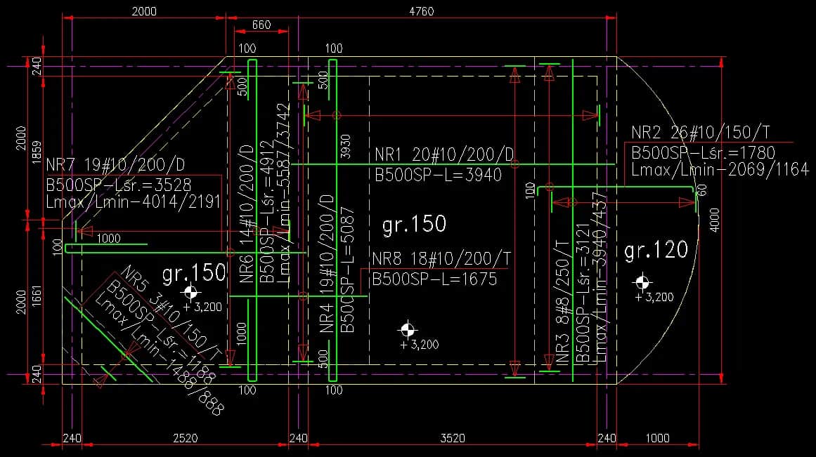
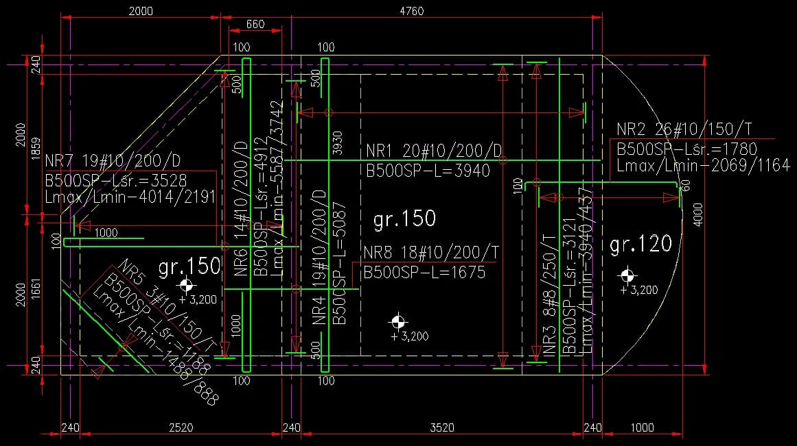
W płytach podparty na obwodzie, zbrojenie górne odgrywa kluczową rolę w zapewnieniu ich stabilności i nośności. W miejscach, gdzie płyta jest podparta, występują znaczne siły zginające oraz skręcające, co wymaga zastosowania odpowiedniego zbrojenia. Zbrojenie górne powinno być umieszczone w narożach i wzdłuż krawędzi, aby efektywnie przenosić obciążenia i przeciwdziałać deformacjom. W przypadku zbrojenia górnego w płytach podparty na obwodzie, jego zasięg wynosi zazwyczaj około 500 mm, co odpowiada 1/10 długości boku płyty. To zapewnia, że płyta ma odpowiednią wytrzymałość i odporność na naprężenia.
| Stan zbrojenia | Rozkład naprężeń (MPa) |
|---|---|
| Bez zbrojenia górnego | 25 |
| Z zbrojeniem górnym | 10 |
Specyfika zbrojenia górnego w płytach swobodnie opartych
W płytach swobodnie opartych, zbrojenie górne ma swoje unikalne wymagania i zastosowania. Jego głównym celem jest zapobieganie unoszeniu się krawędzi oraz powstawaniu pęknięć, które mogą pojawić się pod wpływem różnorodnych obciążeń. W takich płytach, zbrojenie górne powinno być umieszczone w narożach, gdzie siły działające na płytę są największe. Dobrze zaprojektowane zbrojenie górne w płytach swobodnie opartych nie tylko zwiększa ich nośność, ale także poprawia stabilność całej konstrukcji, co jest kluczowe dla bezpieczeństwa użytkowników.
Czytaj więcej: Zbrojenie rozdzielcze: klucz do stabilnych konstrukcji żelbetowych
Obliczenia i wytyczne dotyczące zbrojenia górnego
Obliczenia dotyczące zbrojenia górnego płyty żelbetowej są kluczowe dla zapewnienia odpowiedniej nośności i stabilności konstrukcji. W pierwszej kolejności należy określić rodzaj obciążenia, które będzie działać na płytę, co pozwoli na właściwe dobranie parametrów zbrojenia. Ważne jest, aby uwzględnić zarówno obciążenia statyczne, jak i dynamiczne, które mogą wpływać na zachowanie płyty w czasie jej eksploatacji. Na podstawie tych danych można przeprowadzić obliczenia wymaganej ilości zbrojenia, stosując normy budowlane oraz wytyczne projektowe.
W przypadku zbrojenia górnego, ogólną zasadą jest, że jego ilość powinna być dostosowana do wymagań projektowych oraz warunków eksploatacyjnych. Na przykład, w płytach podparty na obwodzie, zbrojenie górne powinno mieć zasięg około 500 mm w narożach, co odpowiada 1/10 długości boku płyty. Należy również pamiętać o długości zakładów prętów, które powinny być zgodne z normami, aby zapewnić odpowiednią stabilność konstrukcji. W przypadku płyt swobodnie opartych, zbrojenie górne powinno być projektowane tak, aby skutecznie przenosić siły działające na płytę, co jest niezbędne dla jej trwałości.
Jak prawidłowo obliczyć zbrojenie górne w projektach?
Aby prawidłowo obliczyć zbrojenie górne w projektach, należy przejść przez kilka kluczowych kroków. Po pierwsze, należy zidentyfikować rodzaj obciążeń działających na płytę, co pozwoli na określenie wymagań dotyczących zbrojenia. Następnie, korzystając z odpowiednich norm budowlanych, oblicza się wymaganą ilość stali zbrojeniowej, uwzględniając parametry takie jak rozstaw prętów oraz ich średnica. Ważne jest, aby również uwzględnić lokalizację narożników i stref podporowych, gdzie zbrojenie górne powinno być zwiększone. Ostatecznie, obliczenia powinny być dokładnie sprawdzone, aby zapewnić bezpieczeństwo i trwałość konstrukcji.Wymagania dotyczące zakotwień i długości zakładów prętów
W przypadku zbrojenia górnego płyty żelbetowej, odpowiednie zakotwienie i długości zakładów prętów są kluczowe dla zapewnienia stabilności i bezpieczeństwa konstrukcji. Zakotwienia prętów zbrojeniowych powinny być zgodne z obowiązującymi normami budowlanymi, które określają minimalne długości zakotwień w zależności od rodzaju zastosowanej stali oraz warunków eksploatacyjnych. Zwykle, długość zakotwienia powinna wynosić co najmniej 40 razy średnica pręta, aby zapewnić odpowiednie przenoszenie obciążeń. Dodatkowo, długość zakładów prętów powinna wynosić przynajmniej 50 cm, aby zapewnić wystarczającą siłę połączenia między prętami. Właściwe wykonanie tych elementów jest niezbędne do uniknięcia problemów z integralnością konstrukcji w przyszłości.
Najczęstsze błędy w projektowaniu zbrojenia górnego i ich unikanie
W projektowaniu zbrojenia górnego często występują błędy, które mogą prowadzić do poważnych problemów w konstrukcji. Jednym z najczęstszych błędów jest niewłaściwe określenie ilości zbrojenia, co może skutkować niedostateczną nośnością płyty. Ponadto, nieprawidłowe rozmieszczenie prętów, zwłaszcza w strefach narożnych i podporowych, prowadzi do zwiększonego ryzyka pęknięć oraz deformacji. Ważne jest, aby projektanci i inżynierowie stosowali się do norm budowlanych oraz przeprowadzali dokładne obliczenia, aby uniknąć tych typowych problemów.
Innym powszechnym błędem jest ignorowanie wymagań dotyczących zakotwień i długości zakładów prętów, co może prowadzić do osłabienia połączeń. Niezastosowanie się do zaleceń dotyczących zakotwień może skutkować nieprawidłowym przenoszeniem obciążeń, co w efekcie prowadzi do awarii konstrukcji. Aby zminimalizować ryzyko błędów, warto przeprowadzać regularne kontrole i audyty projektów, a także korzystać z doświadczeń innych inżynierów oraz najlepszych praktyk w branży.
Jakie są typowe pomyłki przy rozmieszczaniu zbrojenia górnego?
Typowe pomyłki przy rozmieszczaniu zbrojenia górnego często wynikają z niedostatecznej uwagi na szczegóły. Często zdarza się, że pręty są rozmieszczane w niewłaściwych miejscach, co prowadzi do ich nieefektywnego wykorzystania. Na przykład, zbyt mała odległość między prętami może skutkować nieodpowiednim przenoszeniem obciążeń oraz deformacjami. Dodatkowo, pomijanie narożników lub stref podporowych w procesie montażu zbrojenia górnego może prowadzić do osłabienia całej konstrukcji. Dlatego tak ważne jest, aby podczas projektowania i wykonania zbrojenia górnego przestrzegać wszystkich norm i wytycznych.
Najlepsze praktyki w zakresie zbrojenia górnego płyt żelbetowych
Aby zapewnić skuteczność zbrojenia górnego w płytach żelbetowych, warto stosować się do najlepszych praktyk. Przede wszystkim, zawsze należy dokładnie planować rozmieszczenie prętów, uwzględniając wszystkie strefy obciążenia. Ponadto, korzystanie z wysokiej jakości materiałów zbrojeniowych oraz przestrzeganie norm dotyczących zakotwień i długości zakładów jest kluczowe. Regularne kontrole na etapie budowy oraz współpraca z doświadczonymi inżynierami mogą pomóc w unikaniu błędów. Ostatecznie, dokumentacja projektowa powinna być szczegółowa i dokładna, aby zapewnić prawidłowe wykonanie zbrojenia górnego.Nowoczesne technologie w zbrojeniu górnym płyt żelbetowych
W dzisiejszych czasach, nowoczesne technologie mają ogromny wpływ na projektowanie i wykonawstwo zbrojenia górnego płyty żelbetowej. Wykorzystanie programów komputerowych do modelowania informacji o budynku (BIM) pozwala na precyzyjne zaplanowanie rozmieszczenia prętów zbrojeniowych, co znacznie zwiększa efektywność i dokładność projektów. Dzięki tym narzędziom, inżynierowie mogą symulować obciążenia oraz analizować różne scenariusze, co prowadzi do bardziej optymalnych rozwiązań i minimalizuje ryzyko błędów w wykonaniu.
Dodatkowo, zastosowanie inteligentnych materiałów w zbrojeniu górnym, takich jak kompozyty węglowe, może znacząco poprawić właściwości mechaniczne płyt. Materiały te charakteryzują się wysoką wytrzymałością przy niskiej wadze, co umożliwia redukcję ilości używanej stali, a tym samym obniża koszty i wpływ na środowisko. Wprowadzenie takich innowacji do praktyki budowlanej może zrewolucjonizować sposób, w jaki projektujemy i wykonujemy zbrojenie górne, zapewniając jednocześnie większą trwałość i bezpieczeństwo konstrukcji.
